1階平面図

2階平面図

3階平面図
施設の特徴
・施設入居者が利用する管理棟については、全館バリアフリーとなっており、エレベーター・各階に多目的トイレ(1階のみオストメイト対応)を設置しています。
・集会室・地域交流スペースは、移動間仕切で仕切られており、イベントや災害時には間仕切を移動することにより一体で使用することができます。
・津波浸水対策として、居室は2F~3Fに配置し、備蓄倉庫も2Fに設置しています。
・火災対策として、全館にスプリンクラー・自動火災報知機を設置しています。
・防犯対策として、防犯カメラの設置や夜警による防犯対策を行っています。
・コロナ対策として、全館自動水栓を完備しています。
・1F洗濯室には、大型洗濯機、大型乾燥機を配備しています。
食事について
・温冷管理された「食事」を提供します。
・厨房で直接調理された「手作り感満載」の食事を提供します。
・15時におやつタイムあり(牛乳、お菓子など)。
寿楽荘での給食は、塩分控えめで香りのある栄養バランスのとれた食事を提供しています。献立の作成・調理は、嗜好に考慮し季節に応じた旬の食材を取り入れるなど、家庭的で温かみのある食事の提供を心掛けています。
また、行事食も取り入れ普段とは違う、利用者の方が喜んでくれるような食事も提供しています。
朝食
昼食
夕食
行事食
入浴について
・浴室浴槽には、大型ステンレス浴槽を設置しており、清掃しやすく清潔な状態で使用できます。
又、無機質素材のため、化学物質に過敏な体質の方にも、安心して使用することができます。
又、無機質素材のため、化学物質に過敏な体質の方にも、安心して使用することができます。
・特殊浴室には、車椅子式シャワー入浴装置を設置しています。
★車椅子式シャワー入浴装置の特徴
●湯冷めしにくい、優れた保温効果
●美浴シャワーのため、粒子が小さく汚れを落としやすい。
●シャワーのため、全ての利用者に新しいお湯で入浴することができ、レジオネラ菌や入浴者間の交差感染の予防ができ、衛生的に利用できます。
居室の機能について
・居室は2人部屋となり、間仕切りカーテンにより半個室として利用することができます。
・冷暖房完備
・各ベットごとにTV配線、コンセント完備
居室周辺の環境について
・2F、3Fの中央に談話コーナー、トイレ、多目的トイレ、洗面・洗濯室を配置しています。
・談話コーナーには TV を完備し、入居者が集まってパブリックビューイングを行うことができます。
・洗濯室には、洗濯機を完備し、入居者が自由に使用することができます。
・2Fには物干場(屋根付き)を設置しています。
外構設備について
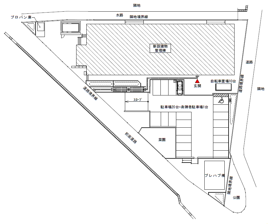
・駐車場20台 身障者駐車場1台 自転車置場10台分を確保しています。
・菜園もありガーデニングを楽しむこともできます。
配置図

